スタッフブログを見ていただきありがとうございます!
今日ご紹介するのはLa Douceur天満
北区エリアでお部屋探し中の方には要チェックの物件です。
駅からのアクセスや周辺の雰囲気など、気になるポイントをまとめましたので、ぜひ最後までご覧ください!
\おすすめ物件を今すぐチェック/
La Douceur天満について
北区でお部屋探し中の方にぜひチェックしてほしいのがLa Douceur天満です!
天満駅から徒歩10分とアクセスの良さが魅力で、通勤や通学にも便利な立地です。
間取りは1LDKで、日当たりの良いリビングや充実した設備がそろっているので、初めての一人暮らしや新生活を始めたい方にぴったり!
実際に周辺を歩いてみるとスーパーや飲食店も多く、暮らしやすさを実感できるエリアです。
La Douceur天満の賃貸情報(募集実績)


| 所在地 | 大阪市北区同心2丁目1−34 |
|---|---|
| 最寄駅 | JR環状線/天満駅 徒歩10分 |
| 築年数 | 2020年11月 |
| 参考部屋タイプ | 3階|間取り|42.05㎡ |
| 構造 | 鉄筋コンクリート |
| 参考条件 | 賃料133,000円|管理費15,000円 敷金0ヶ月|礼金148,000円 |
La Douceur天満の主な特徴・設備




La Douceur天満の室内詳細
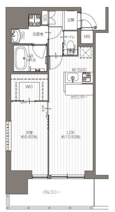
La Douceur天満の間取り

コンパクトながら“暮らしやすさ”が詰まった1LDKプラン
今回ご紹介するのは、約10.5帖のLDK+約5.6帖の洋室を備えた、バランスの良い1LDKタイプのお部屋です。単身の方はもちろん、ゆったり一人暮らしを楽しみたい方やお二人入居にもおすすめできる間取り構成となっています。
■ LDK(約10.5帖)
LDKは縦長形状で、家具配置がしやすいのが特徴です。
キッチンは**カウンタータイプ(W1500)**となっており、調理をしながらリビング全体を見渡せる設計。食事や会話を楽しみながら過ごせるため、生活の中心として心地よい空間に仕上がっています。
リビング・ダイニングをしっかりゾーニングできるため、ソファやダイニングテーブルの配置も無理がありません。
■ 洋室(約5.6帖)+WIC
洋室には**ウォークインクローゼット(WIC)**を完備。衣類はもちろん、季節家電やスーツケースまでまとめて収納でき、居室空間をすっきり保てます。
ベッドを置いても圧迫感が出にくく、落ち着いたプライベート空間として使いやすいサイズ感です。
La Douceur天満の洋室

明るさと開放感が心地よい、ナチュラルテイストのLDK
写真からまず伝わってくるのは、空間全体の明るさと清潔感。
白を基調とした内装と、淡い木目調のフローリングが組み合わさり、実際の帖数以上に広く感じられるLDKです。
■ 家具配置がしやすいシンプルな空間設計
余計な凹凸が少ないため、ソファ・テレビボード・ダイニングテーブルなどの配置がしやすく、生活動線もスムーズ。
「どこに何を置こうか」と考える時間も楽しくなる、素直で使いやすい間取りです。
■ カウンターキッチンが生む一体感
奥に見えるのは、リビングと自然につながるカウンターキッチン。
料理をしながらでもリビング全体を見渡せるため、食事の準備中も空間が分断されません。
カウンター部分は、軽食や作業スペースとしても活躍してくれそうです。
La Douceur天満のキッチン

使いやすさと美しさを両立した、シンプルなシステムキッチン
こちらは、コンパクトながらも機能性の高いシステムキッチン。
白を基調とした天板が清潔感を演出し、空間全体を明るく見せてくれます。
■ 2口ガスコンロで同時調理もスムーズ
キッチンには2口ガスコンロを採用。
自炊派の方でも、炒め物と煮物を同時に進められるため、調理効率が良く、忙しい平日でもストレスを感じにくい仕様です。
■ 作業しやすいフラットな天板
シンクとコンロの間にはしっかりとした作業スペースが確保されており、下ごしらえや盛り付けもスムーズ。
フラットな天板は汚れが溜まりにくく、お掃除のしやすさも魅力です。
La Douceur天満のバスルーム

毎日の疲れをやさしく癒す、落ち着きあるバスルーム
こちらの浴室は、清潔感と使いやすさを重視したユニットバス仕様。
白を基調とした浴槽に、木目調パネルを組み合わせることで、明るさの中にも落ち着きを感じられる空間に仕上がっています。
■ ゆったり入浴できるサイズ感
浴槽はしっかりとした奥行きがあり、足を伸ばしてリラックスしやすい設計。
一日の終わりに、湯船に浸かってゆっくりと体を休めたい方には嬉しいポイントです。
■ 機能的な水栓・シャワー
操作しやすいサーモスタット混合水栓を採用しており、温度調整もスムーズ。
シャワーの高さも調整可能で、使う人を選ばない設計になっています。
La Douceur天満の脱衣所

清潔感と使いやすさを兼ね備えた、すっきり洗面スペース
こちらの洗面脱衣所は、無駄を省いたシンプルな設計で、毎日の身支度がスムーズに行える空間です。白を基調とした内装が、清潔感と明るさをしっかりと演出しています。
■ 収納力のある独立洗面台
洗面台は、上下に収納を備えたタイプ。
洗剤やタオル、スキンケア用品などをまとめて収納できるため、生活感が出にくく、常にすっきりとした印象を保てます。
■ 三面鏡で身支度も快適
ミラーは三面鏡仕様となっており、正面だけでなく横からのチェックも可能。
朝の身支度やヘアセットがしやすく、実用性の高いポイントです。
■ 洗濯機置場もしっかり確保
洗面スペース内には洗濯機置場が設けられており、入浴や洗濯の動線がコンパクトにまとまっています。
家事効率を重視される方にも嬉しい配置です。
La Douceur天満のトイレ

清潔感と使いやすさを重視した、落ち着きあるトイレ空間
こちらのトイレは、シンプルで無駄のないデザインが印象的。
白を基調とした内装により、明るく清潔感のある空間に仕上がっています。
■ 温水洗浄便座付きで快適
毎日の生活に欠かせない温水洗浄便座を標準装備。
季節を問わず快適に使用でき、衛生面にも配慮された仕様です。
■ 棚付きで実用性も◎
上部には棚が設けられており、トイレットペーパーや掃除用品の収納に便利。
必要なものをすぐ手に取れる位置に置けるため、使い勝手の良さが感じられます。
La Douceur天満の収納

収納力と使いやすさを兼ね備えた、頼れるウォークインクローゼット
こちらは、しっかりとした広さを確保したウォークインクローゼット。扉は引き戸仕様のため、開閉時にスペースを取らず、居室との動線もスムーズです。
■ 衣類をまとめて収納できる十分な広さ
内部にはハンガーパイプと枕棚を備えており、コートやスーツ、ワンピースなど丈のある衣類もすっきり収納可能。
日常使いの洋服を一箇所にまとめられるため、衣替えの手間も軽減されます。
■ 床まで使える収納空間
床面にも余裕があり、収納ボックスやスーツケース、季節家電なども置ける設計。
「しまう場所に困らない」という安心感が、日々の暮らしにゆとりを与えてくれます。
La Douceur天満の周辺環境
- スーパー 510m
- コンビニ 305m
- ドラッグストア 1,376m
- 公園 132m
- 銀行 711m
賃貸物件探しでお悩みの方へ
大阪で賃貸物件をお探しの方は、
エーポジションまで!
理想のお部屋探しを徹底サポートします!