スタッフブログを見ていただきありがとうございます!
今日ご紹介するのはザ・パークハビオ都島フロント
都島エリアでお部屋探し中の方には要チェックの物件です。
駅からのアクセスや周辺の雰囲気など、気になるポイントをまとめましたので、ぜひ最後までご覧ください!
\おすすめ物件を今すぐチェック/
ザ・パークハビオ都島フロントについて
都島でお部屋探し中の方にぜひチェックしてほしいのがザ・パークハビオ都島フロントです!
都島駅から徒歩1分とアクセスの良さが魅力で、通勤や通学にも便利な立地です。
間取りは2LDKで、日当たりの良いリビングや充実した設備がそろっているので、初めての一人暮らしや新生活を始めたい方にぴったり!
実際に周辺を歩いてみるとスーパーや飲食店も多く、暮らしやすさを実感できるエリアです。
ザ・パークハビオ都島フロントの賃貸情報(募集実績)


| 所在地 | 大阪市都島区都島北通1丁目1−1 |
|---|---|
| 最寄駅 | Osaka Metro谷町線/都島駅 徒歩1分 |
| 築年数 | 2025年2月 |
| 参考部屋タイプ | 7階|間取り|49.80㎡ |
| 構造 | 鉄筋コンクリート |
| 参考条件 | 賃料189,000円|管理費10,000円 敷金0ヶ月|礼金1ヶ月 |
ザ・パークハビオ都島フロントの主な特徴・設備




ザ・パークハビオ都島フロントの室内詳細
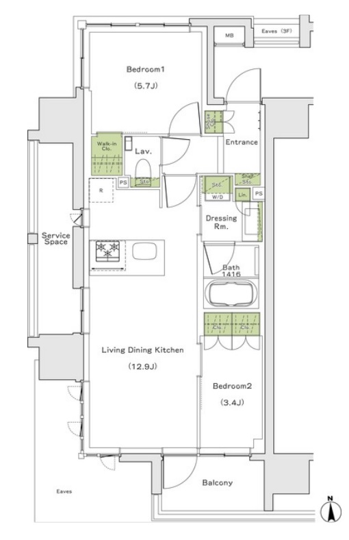
ザ・パークハビオ都島フロントの間取り

今回ご紹介するのは、使い勝手と生活動線をしっかり考慮した2LDKの住まいです!
玄関を入るとすぐに「Dressing Room(脱衣所)」と浴室があり、帰宅後すぐにシャワーを浴びられる理想的なレイアウト。リネン収納やシューズクローゼットも完備されており、収納力も抜群です。
「Living Dining Kitchen(12.9J)」は対面キッチンを中心に開放感のある空間が広がっており、家族とのコミュニケーションが自然と生まれる設計になっています。さらに、リビングの隣にはバルコニーがあるので、風通しも良好。
ザ・パークハビオ都島フロントの洋室

シンプルで洗練されたリビングダイニング空間が魅力的な一枚。
天井のダウンライトが空間を柔らかく照らし、落ち着きのあるフローリングが全体の雰囲気を引き締めています。南向きの大きな窓からたっぷりと自然光が入り、日中は照明いらずの明るさ。角部屋ならではの2面採光で、開放感も抜群です。
奥の洋室とのつながりもスムーズで、リビングと一体感を持たせたレイアウトは、広々とした印象を与えてくれます。
また、写真中央にはエアコンも完備されており、季節を問わず快適な生活が可能。
ザ・パークハビオ都島フロントのキッチン

スタイリッシュで機能性に優れたシステムキッチンが目を引く一枚。
木目調の落ち着いたデザインに加え、ワークトップは広々としており、調理スペースもゆったり確保。3口コンロにグリル付きで、同時調理もスムーズにこなせます。シンク横には水切りプレートもあり、実用性の高さが感じられますね。
リビングと一体化した対面式のカウンターキッチンなので、家族やゲストと会話を楽しみながら料理ができるのもポイント。料理好きにはたまらない空間です!
ザ・パークハビオ都島フロントのバスルーム

一日の疲れを癒す、落ち着きと清潔感あふれるバスルームをご紹介。
木目調パネルが温かみのある雰囲気を演出し、まるでホテルのような上質な空間に。浴槽はゆったりサイズで、肩までしっかり浸かれる形状。追い焚き機能や浴室乾燥機にも対応しており、機能面も文句なしです。
また、大きな鏡と使いやすい棚が備え付けられているので、毎日の入浴がより快適に。清掃性の高い床素材も嬉しいポイントですね。
ザ・パークハビオ都島フロントの脱衣所

こちらは清潔感と機能性を兼ね備えた洗面スペース。
三面鏡付きのワイドな洗面化粧台は、収納力も抜群。鏡の裏には日用品をすっきりと収めることができ、毎日の身支度が快適に行えます。モザイクタイル風のアクセントが上品で、洗練された雰囲気を演出。
洗濯機置き場も独立して配置されており、使いやすさも◎。上部収納もあり、タオルや洗剤などを整理整頓しやすいのが魅力です。
朝の慌ただしい時間も、夜のリラックスタイムも、この空間がきっとサポートしてくれます。
ザ・パークハビオ都島フロントのトイレ

シンプルかつ清潔感あふれるトイレルームも、快適な住まいに欠かせない大切なポイント。
スタイリッシュなダークウッド調の手洗いカウンターと吊り戸棚が、空間に高級感をプラス。使いやすいタンクレストイレで、空間を広く感じさせてくれる設計になっています。
上部収納にはトイレットペーパーや掃除用品などをすっきり収納でき、生活感を抑えたスマートな空間が実現。壁リモコンもすっきりと配置されており、機能性と美しさを両立しています。
ザ・パークハビオ都島フロントの宅配BOX

洗練された雰囲気が漂う、マンションの共用廊下も見逃せないポイント。
シックなグレー調の壁と間接照明がスタイリッシュな空間を演出し、高級感のあるホテルライクな印象に。壁面には宅配ボックスも完備されており、不在時でも荷物の受け取りが可能です。
清潔感があり、しっかりと管理されている様子が伝わってくるこの共用部。帰宅のたびに「ここに帰ってきてよかった」と感じられるような、そんな空間です。
ザ・パークハビオ都島フロントの周辺環境
- スーパー 101m
- 総合病院 617m
- コンビニ 111m
- ドラッグストア 336m
- 銀行 82m
- ドン・キホーテ桜ノ宮店 1,581m
- 商店街 840m
賃貸物件探しでお悩みの方へ
大阪で賃貸物件をお探しの方は、
エーポジションまで!
理想のお部屋探しを徹底サポートします!
