スタッフブログを見ていただきありがとうございます!
今日ご紹介するのはプレジオ都島本通
都島エリアでお部屋探し中の方には要チェックの物件です。
駅からのアクセスや周辺の雰囲気など、気になるポイントをまとめましたので、ぜひ最後までご覧ください!
\おすすめ物件を今すぐチェック/
プレジオ都島本通について
都島区でお部屋探し中の方にぜひチェックしてほしいのがプレジオ都島本通です!
都島駅から徒歩5分とアクセスの良さが魅力で、通勤や通学にも便利な立地です。
間取りは1LDKで、日当たりの良いリビングや充実した設備がそろっているので、初めての一人暮らしや新生活を始めたい方にぴったり!
実際に周辺を歩いてみるとスーパーや飲食店も多く、暮らしやすさを実感できるエリアです。
プレジオ都島本通の賃貸情報(募集実績)


| 所在地 | 大阪府大阪市都島区都島本通3丁目5-10 |
|---|---|
| 最寄駅 | Osaka Metro谷町線/都島駅 徒歩5分 |
| 築年数 | 2020年3月 |
| 参考部屋タイプ | 4階|間取り|39.56㎡ |
| 構造 | 鉄筋コンクリート |
| 参考条件 | 賃料127,000円|管理費15,000円 敷金0ヶ月|礼金1ヶ月 |
プレジオ都島本通の主な特徴・設備




プレジオ都島本通の室内詳細
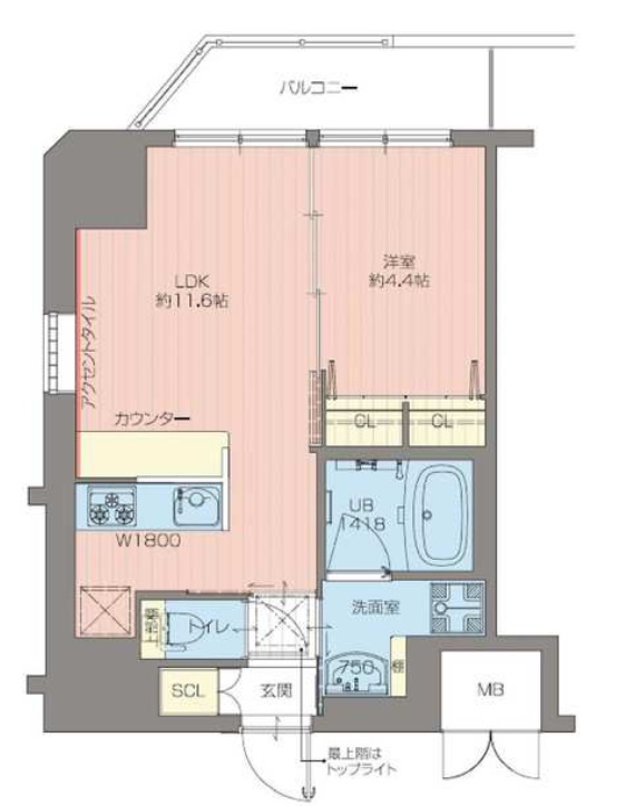
プレジオ都島本通の間取り

広々としたLDKは、リビング・ダイニング・キッチンが一体となっており、開放感たっぷり。カウンターキッチンを採用しており、調理をしながら会話も弾みます。キッチンの横幅はW1800で、使い勝手も抜群です。
寝室としてちょうどよい広さ。収納はクローゼット(CL)が2か所あり、洋服や小物の整理に困りません。バルコニーと隣接しているため、自然光がたっぷり入ります。
プレジオ都島本通の洋室

今回ご紹介するのは、洗練されたホワイト基調の1LDK。写真からも伝わるように、明るく広々とした空間が魅力のお部屋です。シンプルながら、細部にこだわりが詰まっています。室内は、白を基調としたフローリングと壁紙で統一され、清潔感がありつつも温かみのある雰囲気。ナチュラルな光が差し込むことで、より一層明るく感じられる空間になっています。
プレジオ都島本通のキッチン

広々とした3口ガスコンロを搭載しており、「主菜・副菜・汁物」を同時に調理できる効率的なレイアウト。忙しい朝や、時間をかけたディナーづくりにもぴったりです。グリルもついているので、魚料理や焼き野菜も手軽に楽しめます。右側にはステンレス製のワイドシンク。大きなお鍋やフライパンも洗いやすく、水はねもしっかりガード。清掃性も高く、いつでも清潔な状態を保てます。シンプルな水栓デザインが、空間にスマートな印象を与えています。
プレジオ都島本通のバスルーム

1日の疲れを癒やすバスルームは、心と体をリセットする大切な空間。今回ご紹介するのは、木目調のアクセントパネルが印象的な高機能バスルームです。機能・快適さ・美しさを兼ね備えた、まさに理想の浴室です。
プレジオ都島本通の脱衣所

本日ご紹介するのは、清潔感あふれるスタイリッシュな洗面所。シンプルながらも計算された収納力と使いやすさが詰まった空間で、朝の準備や帰宅後のリフレッシュタイムを快適にサポートしてくれます。
プレジオ都島本通のトイレ

毎日使う場所だからこそ、使い心地の良さと清潔感にこだわりたい。今回ご紹介するのは、無駄を省いたシンプルで明るいトイレ空間。清掃のしやすさと機能性が両立された、居心地のよい設計です。
プレジオ都島本通の宅配BOX

スタイリッシュなステンレス製の宅配ボックスが並ぶ共用スペース。
不在時でも荷物を受け取れる宅配ボックスは、ネットショッピングが多い方にとっても嬉しいポイント。
デザイン性の高い空間は、毎日の暮らしにちょっとした特別感をプラスしてくれます。
プレジオ都島本通の周辺環境
- スーパー 399m
- 総合病院 591m
- コンビニ 148m
- ドラッグストア 476m
- 公園 407m
- 銀行 395m
- 商店街 1,867m
賃貸物件探しでお悩みの方へ
大阪で賃貸物件をお探しの方は、
エーポジションまで!
理想のお部屋探しを徹底サポートします!
