MENU

アーバネックス同心Ⅱ/大阪市北区同心/扇町駅/2LDK/設備充実の高級賃貸マンション

当店は大阪府全域の物件を取り扱い可能です!お気軽にご相談ください!

スタッフブログを見ていただきありがとうございます!
今日ご紹介するのはアーバネックス同心。
天満エリアでお部屋探し中の方には要チェックの物件です。
駅からのアクセスや周辺の雰囲気など、気になるポイントをまとめましたので、ぜひ最後までご覧ください!

\おすすめ物件を今すぐチェック/

目次

アーバネックス同心Ⅱについて

北区でお部屋探し中の方にぜひチェックしてほしいのがアーバネックス同心Ⅱです!
【扇町駅】から徒歩6分とアクセスの良さが魅力で、通勤や通学にも便利な立地です。
間取りは3LDKで、日当たりの良いリビングや充実した設備がそろっているので、初めての一人暮らしや新生活を始めたい方にぴったり!
実際に周辺を歩いてみるとスーパーや飲食店も多く、暮らしやすさを実感できるエリアです。

アーバネックス同心Ⅱの賃貸情報(募集実績)

スクロールできます
所在地大阪府大阪市北区同心2-11-2
最寄駅大阪メトロ堺筋線/扇町駅 徒歩6分
築年数2023年2月
参考部屋タイプ9階|3LDK|64.79m2
構造鉄筋コンクリート
参考条件賃料219,000円|管理費12,000円
敷金0ヶ月|礼金1ヶ月

アーバネックス同心の主な特徴・設備

アーバネックス同心Ⅱの室内詳細

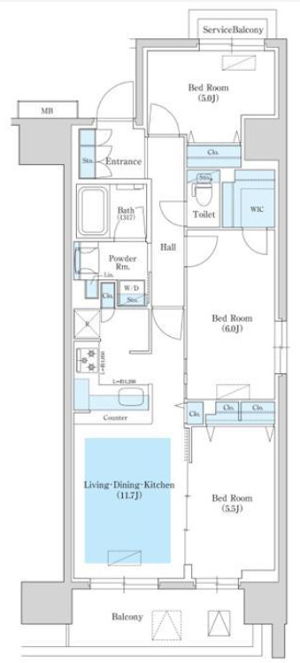
アーバネックス同心Ⅱの間取り

今回ご紹介するお部屋は、無駄のないレイアウトで使いやすさが魅力です。
リビングや居室の広さがしっかり確保されており、家具の配置もしやすい設計になっています。
水まわりや収納の配置も工夫されているので、日常生活を快適に送れる間取りです。
初めての一人暮らしはもちろん、カップルやご家族にもおすすめできるバランスの良さがあります。

アーバネックス同心Ⅱの洋室

ゆとりあるLDKは、家族や友人との時間を楽しむのにぴったり。
明るい窓から自然光が差し込み、開放感のある空間になっています。
ダイニングやリビングスペースをしっかり分けて使えるので、ライフスタイルに合わせたレイアウトが可能です。

洋室はシンプルなつくりで、寝室やワークスペースなど幅広く活用できます。
家具の配置がしやすい形状になっており、自分らしい空間を演出しやすいのも魅力です。
落ち着いた雰囲気で、プライベートな時間をゆっくり過ごせます。

アーバネックス同心Ⅱのキッチン

キッチンは毎日の暮らしを支える大切な空間です。
清潔感のあるデザインで、調理や片付けがしやすいように配慮されています。
シンクや調理スペースはシンプルで使いやすく、日常の料理をストレスなくこなせるのが魅力。
コンパクトながらも必要な設備がしっかりと備わっているので、一人暮らしの方からファミリーまで幅広く対応できる使い勝手があります。

また、収納スペースが確保されているため、調理器具や食器をすっきり片付けられるのも嬉しいポイントです。
キッチンまわりが整っていると料理の効率も上がり、自然と自炊が楽しくなります。
日常的に使う場所だからこそ、清潔さと機能性の両方が備わっているのは安心です。
料理好きな方にも、これから自炊を始めたい方にもおすすめできる快適なキッチン空間となっています。

アーバネックス同心Ⅱのバスルーム

バスルームは毎日の疲れを癒す大切な場所です。
清潔感のある内装で、明るく落ち着いた雰囲気が広がっています。
シンプルながらも使いやすいデザインになっており、どなたでも快適に利用できるのが魅力です。
浴槽はしっかりとしたサイズ感があり、ゆったりとお湯につかってリラックスできる空間を演出。
お仕事や学校で疲れた体を、しっかりと癒す時間を過ごせます。

さらに、掃除のしやすさにも配慮されているので、日々のメンテナンスが簡単なのも嬉しいポイント。
お風呂は毎日使う場所だからこそ、気持ちよく保てる仕様になっているのは安心です。
心地よいバスタイムを実現できる、暮らしの中で欠かせない設備のひとつと言えるでしょう。

アーバネックス同心Ⅱの脱衣所

脱衣所は入浴前後や身支度の際に欠かせないスペースです。
シンプルながらも清潔感のあるつくりで、日常的に使いやすいのが魅力。
洗面台や浴室とスムーズにつながっているので、生活動線も快適に整えられています。
タオルや洗濯物を置ける余裕のある広さがあり、家族での利用にも便利。
ちょっとした収納を工夫すれば、より使いやすく自分らしい空間にアレンジすることもできます。
毎日の生活を支える空間だからこそ、快適さと実用性を兼ね備えた仕様になっているのは大きなポイントです。

アーバネックス同心Ⅱのトイレ

トイレは毎日必ず使う空間だからこそ、清潔感や使いやすさが大切です。
シンプルで落ち着いた内装になっており、どなたでも快適に利用できる雰囲気があります。
掃除がしやすい仕様になっているので、いつでも清潔に保ちやすいのもポイント。
日常の中で欠かせない設備だからこそ、安心して使える環境が整っているのは嬉しいですね。

アーバネックス同心Ⅱの収納

収納スペースは、暮らしやすさを大きく左右する大切なポイントです。
アーバネックス同心Ⅱでは、日常的に使う衣類や生活用品をしっかりとしまえるよう、十分な収納が確保されています。
クローゼットは奥行きがあり、洋服だけでなく季節の家電や趣味の道具なども整理しやすいのが特徴です。

収納が整っていると、お部屋全体をすっきりと片付けることができ、広々とした空間を感じられるのも嬉しいところ。家具やインテリアを無理に増やす必要がなく、自分らしいレイアウトを楽しめるのも魅力です。
また、整理整頓がしやすいため、生活動線がスムーズになり、毎日の暮らしがより快適に。

アーバネックス同心Ⅱの周辺環境

  • ドン・キホーテ 天満駅店 550m
  • 北区区役所 900m
  • セブンイレブン 大阪同心2丁目店 120m

賃貸物件探しでお悩みの方へ

大阪で賃貸物件をお探しの方は、
エーポジションまで!
理想のお部屋探しを徹底サポートします!

賃貸物件探しでよくあるご質問

内見はどうやって予約すればいいですか?

ご希望の物件が決まりましたら、当社までお気軽にご連絡ください。空室状況を確認のうえ、スタッフが内見日時を調整いたします。複数の物件をまとめてご案内することも可能です。

初期費用はどれくらいかかりますか?

一般的には、敷金・礼金・前家賃・仲介手数料・火災保険料などが必要です。物件によって条件は異なりますので、詳細はお問い合わせいただければ、目安の金額を試算いたします。

契約に必要な書類は何がありますか?

ご本人確認ができる身分証明書、収入を確認できる書類(源泉徴収票や給与明細など)、印鑑などが必要です。場合によっては、保証会社の申込書や緊急連絡先の情報もお願いしています。

どれくらい前から物件を探し始めたらいいですか?

一般的には「入居希望日の1〜2か月前」から探し始めるのが目安です。人気の物件は空きが出てすぐ埋まってしまうことも多いので、余裕をもって探すのがおすすめです。特に春や秋の引っ越しシーズンは動きが早いため、早めに内見・仮押さえを検討される方が安心です。

家賃交渉は可能ですか?

物件やオーナー様の状況によって異なりますが、タイミングや条件次第では家賃交渉ができる場合もあります。築年数が経っている物件や、空室期間が長い物件では柔軟に対応してもらえることもあります。ただし、人気物件や新築物件では難しいケースが多いため、必ずしも交渉が成立するわけではありません。交渉を希望される際は、私たちスタッフがオーナー様と確認いたしますので、お気軽にご相談ください。

よかったらシェアしてね!
  • URLをコピーしました!

この記事を書いた人

エーポジション中崎町店の編集メンバーが不定期で更新します。不動産界隈の最新ニュース・物件更新情報・エーポジション中崎町店からのお知らせやお部屋探しに役立つ情報をわかりやすく紹介します!

LINEでお問い合わせ24時間受付中(無料)
プロに探してもらう24時間受付中(無料)
来店予約24時間受付中(無料)
【無料】お部屋探し・ご相談はこちらから +