スタッフブログを見ていただきありがとうございます!
今日ご紹介するのは【プレジオ天神橋ASIAN】。
北区エリアでお部屋探し中の方には要チェックの物件です。
駅からのアクセスや周辺の雰囲気など、気になるポイントをまとめましたので、ぜひ最後までご覧ください!
\おすすめ物件を今すぐチェック/
プレジオ天神橋ASIANについて
北区でお部屋探し中の方にぜひチェックしてほしいのがプレジオ天神橋ASIANです!
天神橋筋六丁目駅から徒歩9分とアクセスの良さが魅力で、通勤や通学にも便利な立地です。
間取りは1LDKで、日当たりの良いリビングや充実した設備がそろっているので、初めての一人暮らしや新生活を始めたい方にぴったり!
実際に周辺を歩いてみるとスーパーや飲食店も多く、暮らしやすさを実感できるエリアです。
プレジオ天神橋ASIANの賃貸情報(募集実績)


| 所在地 | 大阪市北区本庄東3丁目5-7 |
|---|---|
| 最寄駅 | Osaka Metro堺筋線/天神橋筋六丁目駅駅 徒歩9分 |
| 築年数 | 2023年12月 |
| 参考部屋タイプ | 3階|間取り|38.40㎡ |
| 構造 | 鉄筋コンクリート |
| 参考条件 | 賃料129,000円|管理費15,000円 敷金0ヶ月|礼金1ヶ月 |
プレジオ天神橋ASIANの主な特徴・設備




プレジオ天神橋ASIANの室内詳細
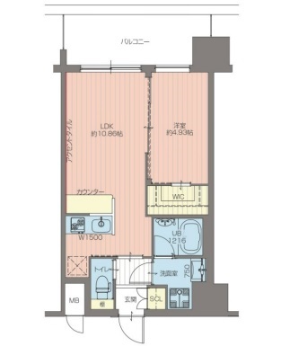
プレジオ天神橋ASIANの間取り

キッチンと一体となったLDKは約10.8帖の広さ。ナチュラルなフローリングが心地よく、南向きバルコニーからの自然光で日中は明るく過ごせます。カウンターキッチンは、料理をしながらリビング全体が見渡せる設計で、コミュニケーションもばっちり!
寝室として最適な洋室は約4.9帖。こちらには**ウォークインクローゼット(WIC)**を完備しており、洋服や季節物もスッキリ収納可能。コンパクトながらも収納力抜群です!
プレジオ天神橋ASIANの洋室

圧倒的な開放感!リビングと洋室の間にあるスライドドアを開ければ、約15帖以上の大空間に。来客時には扉を閉じてプライベート空間を確保、普段は広々としたワンルームとして使用可能なフレキシブルな間取りです。
プレジオ天神橋ASIANのキッチン

調理スペースには2口のガスコンロを完備。炒め物と煮物を同時に作ったり、お弁当の準備もスムーズに進められます。火力の調整もしやすく、料理初心者から上級者まで使いやすい設計です。
シンクは、ステンレス製のスクエアタイプで、洗いやすくお手入れも簡単。シンプルなデザインながらも、十分な奥行きと幅があり、洗い物もストレスフリー。水はねを防ぐ工夫もされていて、清潔感を保ちやすいのもポイントです。
プレジオ天神橋ASIANのバスルーム

毎日の生活に欠かせない「バスルーム」。せっかくなら、ただの“水回り”ではなく、癒しの空間として心地よく過ごしたいですよね。
今回のお部屋のバスルームは、そんな願いを叶えてくれる、デザイン性と機能性を兼ね備えたこだわり仕様です。
壁面には高級感あるダークウッド調パネルを採用。温もりを感じられる空間で、まるでホテルのようなバスタイムを演出します。清潔感あるアイボリーカラーの浴槽とのバランスも絶妙で、見た目にも心地よさが広がります。
プレジオ天神橋ASIANの脱衣所

生活感が出やすい“水回り”こそ、スッキリとしたデザインと使いやすさが求められる場所。
今回ご紹介する物件は、そんな要望をしっかりと満たしてくれる、清潔感あふれる洗面脱衣所が魅力です✨
スタイリッシュなダークブラウンのキャビネットに、三面鏡タイプのミラー収納を組み合わせた洗面化粧台は、まるでホテルのパウダールームのような高級感。
プレジオ天神橋ASIANのトイレ

「トイレは生活の質を左右する」と言っても過言ではありません。
だからこそ、清潔感・快適性・使いやすさがしっかりと整った空間は嬉しいポイント!
こちらの物件のトイレは、まさにその理想をカタチにしたような仕上がりです。
「プレジオ天神橋ASIAN」の宅配BOX

スタイリッシュなステンレス製の宅配ボックスが並ぶ共用スペース。
不在時でも荷物を受け取れる宅配ボックスは、ネットショッピングが多い方にとっても嬉しいポイント。
プレジオ天神橋ASIANの周辺環境
- スーパー 607m
- コンビニ 187m
- ドラッグストア 769m
- 総合病院 606m
- 商店街 1,966m
- 銀行 804m
賃貸物件探しでお悩みの方へ
大阪で賃貸物件をお探しの方は、
エーポジションまで!
理想のお部屋探しを徹底サポートします!
